Fellbach – zentrale Lage – *** S06 *** Repräsentative Büroflächen Zur Miete

600,00€

180,00€ Nebenkosten

Beschreibung

Beschreibung des Objekts

Objektbeschreibung:
Laden und Bürogebäude mit 4 Ebenen, sowie Tiefgarage im UG, erbaut 1988 funktionale Architektur,
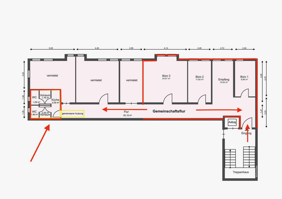
Zugang Büroräume über 2 separate Eingänge und Treppenhäuser. Personenaufzug vorhanden.

Mietflächen:
Gewerbeflächen 2. OG,
3 Büroräume, Empfang, Gemeinschaftsküche und 2 WC´s,
Gewerbeflächen: 77 m2 (von Gesamtfläche 155 m2)
Auf der Ebene befinden sich weitere 3 Büroräume, die separat an einen Pflegedienst vermietet sind .

Raumhöhe: ca. 2,50 m,
Bodenbelag: Gang, WC und Küche Fliesen,
Einzelbüros Teppich, Nadelfilz grau

Beheizung erfolgt mittels Gas- Zentralheizung,
Ausreichend Tageslicht durch großzügige Verglasung
innenliegende Lamellenrollos,
Fenster öffenbar, 2-fach Verglasung
Decken glatt verputzt, Leuchtstoffröhren
Internet (Vodafone 50 MB)

Beschreibung der Ausstattung

Energieausweis:
Verbrauchsausweis gewerblich vom06.04.2020Endenergiebedarf Wärme 78 kwh(m²*a)
Endenergiebedarf Strom 84 kwh(m²*a)
Wesentlicher Energieträger Erdgas H

Mietpreis:
Kaltmiete € 600,00
2 Tiefgaragenstellplätze Stellplätze a € 80,00

Nebenkosten-Vorauszahlung: € 180,00
(Heizung enthalten)

Gesamtkosten Büro, NK, 2 Stellplätze in der Tiefgarage: € 940,00

Keine MwSt.

Mietkaution:3 Monatsmieten

Eine Besichtigung ist nach Absprache in unserer Begleitung möglich.

Lage

In Fellbach, nordöstlich vor den Toren Stuttgarts am Eingang des Remstals gelegen.
45.000 Einwohner.
Durch die unmittelbare Nähe zu Stuttgart ist Fellbach heute ein eigenständisches, bedeutendes Wirtschaftszentrum mit einer gesunden Mischung aus Handel, Gewerbe und Industrie.
Gewerbesteuerhebesatz 415 v.H.

Sonstige Angaben

Es liegt ein Energieverbrauchsausweis vor.
Dieser ist gültig bis 5.4.2030.
Endenergieverbrauch für die Wärme beträgt 78.00 kwh/(m²*a).
Endenergieverbrauch für den Strom beträgt 84.00 kwh/(m²*a).
Wesentlicher Energieträger der Heizung ist Gas.

Geschäfts- und Provisionsvereinbarungen

Sämtliche Angaben basieren auf den Daten, die uns vom Eigentümer / Vermieter genannt wurden, daher können wir keine Haftung für die Richtigkeit übernehmen. Dieses Angebot ist vom Empfänger vertraulich zu behandeln, jede Weitergabe an Dritte ohne Zustimmung des Maklers ist unzulässig. Ist dem Empfänger das nachgewiesene Objekt bereits bekannt, so hat er dies dem Makler unverzüglich (binnen Wochenfrist) mitzuteilen.

Dieses Angebot ist für Mietinteressenten provisionsfrei !

Wir setzen die Richtlinien und Vorgaben der EU-DSGVO in allen Bereichen unseres Unternehmens um. Aktualisierungen und Änderungen sowie die Kontaktdaten unseres externen Datenschutzbeauftragten können Sie auf unserer Homepage (www.mergenthaler-immobilien.de/datenschutz/) einsehen.

Bitte haben Sie Verständnis, dass wir Ihnen aufgrund gesetzlicher Vorgaben weitere Informationen erst gegen Vorlage Ihrer vollständigen Anschrift mit Telefonnummer bzw. E-Mail-Adresse zur Verfügung stellen können.

Seit Juni 2014 sind wir verpflichtet, Sie über Ihr Widerrufsrecht zu informieren.

Der Interessent stimmt ausdrücklich zu, dass seine Daten zum Zwecke der Bearbeitung der Anfrage benutzt werden können. Ebenso willigt er in die Erhebung, Verarbeitung, Speicherung und Nutzung seiner Daten ein und gestattet dem Makler und dem Eigentümer, ihn via E-Mail, per Telefon oder schriftlich zu kontaktieren.

  • Adresse: 70734, Fellbach
  • Stadt: Fellbach
  • Postleitzahl: 70734
  • Land: Germany

Detail

Letzte Änderung Januar 21, 2026 um 3:15 a.m.

  • Objekt ID: G-9227
  • Preis: 600,00€
  • Gesamtfläche: ca. 77.00 m²

Features

Kontakt Information

IHR ANSPRECHPARTNER

  • Gewerbeimmobilien Mergenthaler GmbH
  • (07151) 981 48 31

Anfrage zu diesem Objekt

    *Pflichtfeld