Moderne Büroflächen, Teilflächen möglich, kurze Laufzeiten möglich Zur Miete

1.912,50€

540,00€ Nebenkosten

Beschreibung

Beschreibung des Objekts

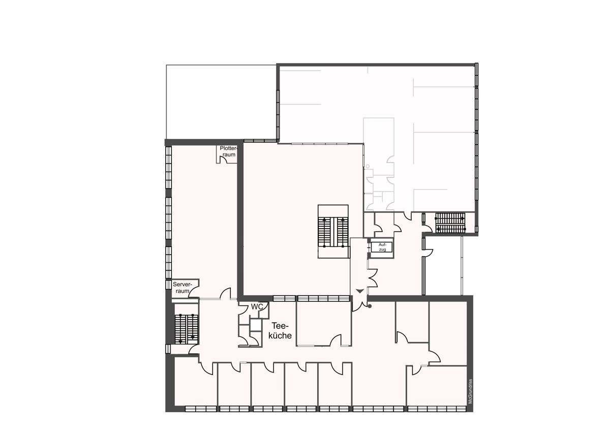
Helle Büroflächen durch Vollverglasung in einem Bürokomplex mit Teeküche, Aufenthaltsraum sowie sanitären Anlagen.

Mietkonditionen
Bürofläche ca. 150,00 x € 12,75 = € 1.912,50
2 Stellplätze im Freien à € 55,00 = € 110,00
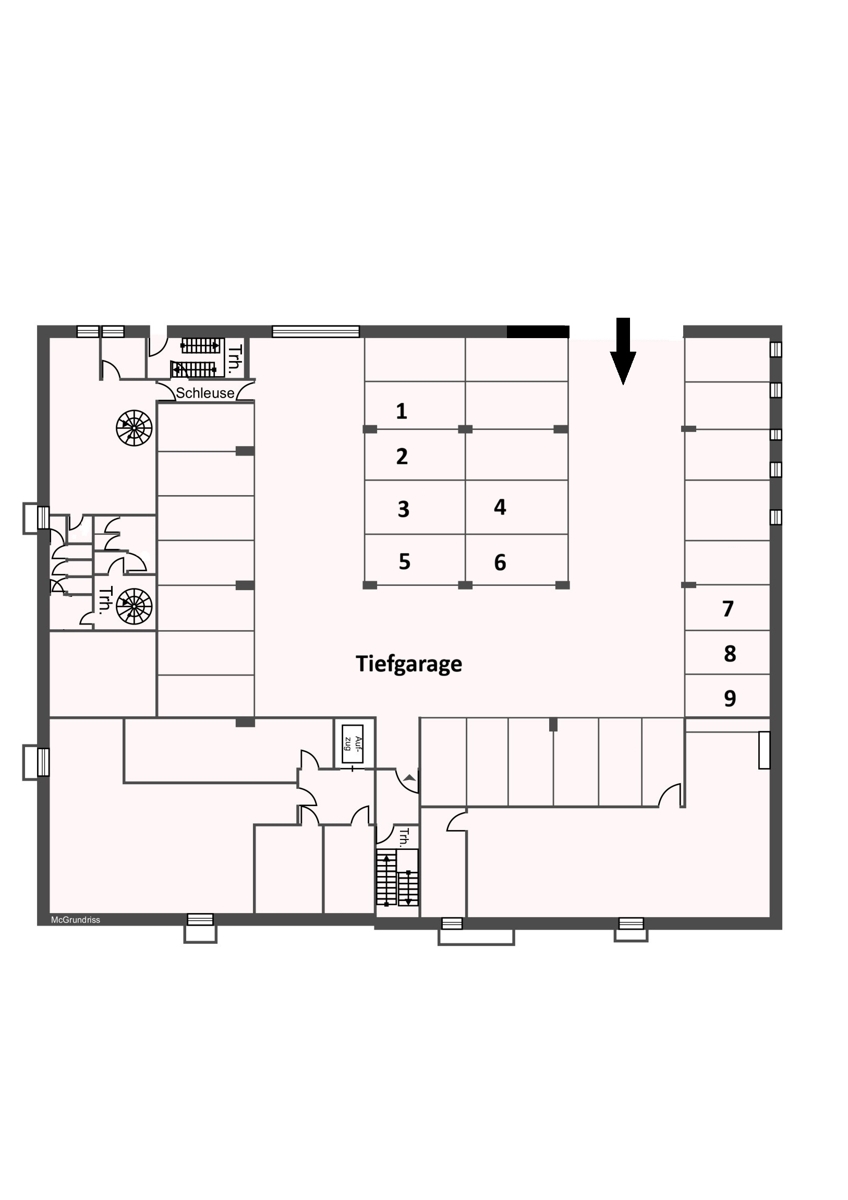
3 TG-Stellplätze à € 85,00 = € 255,00
Nebenkostenvorauszahlung € 540,00

zzgl. gesetzlicher MwSt. Die Konditionen können nur bis 05/2028 gewährleistet werden.

 

2 Stellplätze im Freien und 3 Tiefgaragenstellplätze.

Bei Bedarf können weitere Büroflächen bis zu 500 m² dazu gemietet werden. Mietzeiten auch unter 12 Monaten möglich.

Hausmeisterservice

Bedarfsausweis, 203 kWh/(m2*a), Zentralheizung, Gas, Bj. 1999, 52 CO2/(m2*a), Baujahr Wärmeerzeuger 1999

Beschreibung der Ausstattung

– komplette Vollverglasung
– Aufzug
– Schallschutzelemente an den Decken
– Fenster Kunststoff isolierverglast (aus 1996)
– Bodenbelag: Teppichboden
– Wände: Feinputz
– Verkabelung über Bodentanks
– Räume teilweise klimatisiert
– bei Bedarf können 4 Ladepunkte mit 11 kw-Säulen eingerichtet werden.

Auf Wunsch des Mieters kann die Büromöblierung und Büroeinrichtung und -ausstattung (soweit vorhanden) ohne weitere Kosten übernommen werden.

Lage

Weilimdorf (bis 1955 Weil im Dorf) ist ein Stadtbezirk im Nordwesten von Stuttgart. Er grenzt an die Stuttgarter Stadtbezirke Zuffenhausen, Feuerbach und Stuttgart-West sowie die Städte Gerlingen, Ditzingen und Korntal-Münchingen (alle drei Landkreis Ludwigsburg).

Sonstige Angaben

Es liegt ein Energiebedarfsausweis vor.
Dieser ist gültig bis 4.10.2034.
Endenergiebedarf beträgt 203.00 kwh/(m²*a).
Wesentlicher Energieträger der Heizung ist Erdgas leicht.
Das Baujahr des Objekts lt. Energieausweis ist 1999.

Geschäfts- und Provisionsvereinbarungen

Sämtliche Angaben basieren auf den Daten, die uns vom Eigentümer/Vermieter genannt wurden, daher können wir keine Haftung für die Richtigkeit übernehmen. Dieses Angebot ist vom Empfänger vertraulich zu behandeln, jede Weitergabe an Dritte ohne Zustimmung des Maklers ist unzulässig. Ist dem Empfänger das nachgewiesene Objekt bereits bekannt, so hat er dies dem Makler unverzüglich (binnen Wochenfrist) mitzuteilen. Mit Abschluss des Mietvertrages wird die vom Mieter zu bezahlende Mieterprovision in Höhe von 2,38 Netto-Monatskaltmieten inkl. MwSt. zur Zahlung fällig.

Wir setzen die Richtlinien und Vorgaben der EU-DSGVO in allen Bereichen unseres Unternehmens um. Aktualisierungen und Änderungen sowie die Kontaktdaten unseres externen Datenschutzbeauftragten können Sie auf unserer Homepage (www.mergenthaler-immobilien.de/datenschutz/) einsehen.

  • Adresse: 70499, Stuttgart-Weilimdorf
  • Stadt: Stuttgart-Weilimdorf
  • Postleitzahl: 70499

Detail

Letzte Änderung Februar 3, 2026 um 4:24 p.m.

  • Objekt ID: G-9254 T
  • Preis: 1.912,50€
  • Gesamtfläche: ca. 150.00 m²
  • Baujahr: 1999

Features

Kontakt Information

IHR ANSPRECHPARTNER

  • Gewerbeimmobilien Mergenthaler GmbH
  • (07151) 981 48 31

Anfrage zu diesem Objekt

    *Pflichtfeld