Neubau, DGNB Gold-Standard und KFW40 NH zertifiziert Zur Miete

12.000,00€

3.200,00€ Nebenkosten

Beschreibung

Beschreibung des Objekts

Neue und hochwertige Gewerbefläche mit moderner Ausstattung. Dieses lichtdurchflutete Gebäude setzt optisch sowie technisch Maßstäbe. Diese repräsentative Gewerbefläche ist schon von der B29 ein Blickfang.

Die Räumlichkeiten bieten vielseitige Nutzungsmöglichkeiten, ideal für Büros, Praxen oder Verkaufsflächen. Hohe Decken, große Fensterflächen und automatische Abdunklung sorgen für ein angenehmes Arbeitsklima.

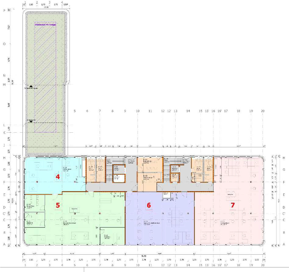
Gesamte Nutzfläche 1. OG ca. 797 m² – Aufteilung in 4 Teilflächen möglich.

Teilfläche 4 Büroraum ca. 96 m²
Teilfläche 5 gesamt ca. 232 m² (Büroraum ca. 185 m², Einzelbüro ca. 13 m², Einzelbüro ca. 19 m², Besprechungsraum ca. 15 m²).
Teilfläche 6 Büroraum ca. 162 m²
Teilfläche 7 Büroraum ca. 242 m²
Mögliche gemeinschaftliche Nutzung: sanitäre Anlagen (2 x WC Damen/Herren), Teeküche/Aufenthaltsraum (ca. 18 m²), Besprechungszimmer (ca. 16 m²).

Nutzflächen im UG ca. 600 m² (Kellerräume, Archivräume, Lagerflächen), Anmietung in flexiblen Größen möglich.

Anmietung von Stellplätzen möglich. Miete € 30,00 pro Stellplatz. Abstellmöglichkeit für Fahrräder vorhanden.

Die Anmietung von weiteren Teilflächen ist möglich.

Mietkonditionen:
Anmietung Gesamtfläche: Miete € 15,00/m² zzgl. NK € 4,00/m² zzgl. MwSt.
Anmietung Teilfläche: Miete € 16,50/m² zzgl. NK € 4,00/m² zzgl. MwSt.
Anmietung Lager-, Keller- und Archivflächen: Miete € 5,00/m² zzgl. NK zzgl. MwSt.

Die Nebenkosten beinhalten u. a. Aufzüge, Hausmeisterdienst, Pflege der Außenanlage, Grundsteuer, Gebäudeversicherung, Wartungskosten.

Durch die flexible Bauweise mit Hohlraumböden und der reichlichen Verfügbarkeit an Steckdosen und Datendosen, ist eine nachträglich angepasste Raumaufteilung innerhalb der markierten Flächen jederzeit schnell umsetzbar.

Das Gebäude wird DGNB Gold und KFW40 NH zertifiziert. Fertigstellung ist November 2026 geplant.

Im Gebäude wird eine aufstrebende, junge Firma, welche sich mit der Entwicklung und Verwirklichung von digitaler Medizintechnik beschäftigt, einziehen. Hier sind entsprechend moderne Büro-, Labor- und Produktionsflächen geplant.

Energieausweis – Kurzübersicht
Bedarfsausweis, 49 kWh/(m²*a), Heizung Wärmepumpe, Fußbodenheizung/-kühlung, Strom, Bj. 2026, 16 CO2/(m2*a)

Beschreibung der Ausstattung

Hochwertige Ausstattung:
– Maximale Raumflexibilität über Hohlraumboden mit Bodentanks und Rasterdecken
– verglaste Fassade
– elektrische Abdunklung
– Aufzüge
– Glasfaser-Internet bis 1.000 Mbit/s
– modernes und nachhaltiges Gebäude (DGNB Gold-Standard und KFW40 NH zertifiziert)
– innovatives und autarkes Klimatisierungssystem
– Heizung: Wärmepumpe, Fußbodenheizung
– barrierefreier Zugang
– barrierearm: zwei Aufzüge
– Parkplätze direkt am Objekt für Mitarbeiter und Kunden sowie Abstellmöglichkeit für Fahrräder.
– repräsentatives Erdgeschoß/Eingangsbereich mit 4 m Raumhöhe
– Ladestationen für E-Autos
– Trafostation 630 kVA vorhanden
– PV-Anlage mit Energiespeicher im Objekt
– intelligente Gebäudesteuerung
– optimale Geräuschdämmung durch Schallschutzklasse 4
– hochwertige technische Ausstattung über Bedienpannels
– erhöhter Sicherheitsstandart mit Umzäunung, Kameraüberwachung und RC2
– Regenwasserzisterne

– Keller: Vollunterkellerung, Raumhöhe 3,10 m, Ausführung weiße Wanne

Lage

Die Gewerbefläche in der Nähe von Stuttgart befindet sich in einer sehr gut angebundenen Lage mit hervorragender Verkehrsanbindung. In direkter Nähe befinden sich Bundesstraßenanschlüsse sowie Anbindungen an den öffentlichen Nahverkehr, was die Erreichbarkeit für Mitarbeiter und Kunden erleichtert.

Sonstige Angaben

Geschäfts- und Provisionsvereinbarungen

Sämtliche Angaben basieren auf den Daten, die uns vom Eigentümer/Vermieter genannt wurden, daher können wir keine Haftung für die Richtigkeit übernehmen. Dieses Angebot ist vom Empfänger vertraulich zu behandeln, jede Weitergabe an Dritte ohne Zustimmung des Maklers ist unzulässig. Ist dem Empfänger das nachgewiesene Objekt bereits bekannt, so hat er dies dem Makler unverzüglich (binnen Wochenfrist) mitzuteilen. Mit Abschluss des Mietvertrages wird die vom Mieter zu bezahlende Mieterprovision in Höhe von 2,38 Netto-Monatskaltmieten inkl. MwSt. zur Zahlung fällig.

Wir setzen die Richtlinien und Vorgaben der EU-DSGVO in allen Bereichen unseres Unternehmens um. Aktualisierungen und Änderungen sowie die Kontaktdaten unseres externen Datenschutzbeauftragten können Sie auf unserer Homepage (www.mergenthaler-immobilien.de/datenschutz/) einsehen.

  • Adresse: 73655, Plüderhausen
  • Stadt: Plüderhausen
  • Postleitzahl: 73655

Detail

Letzte Änderung Februar 16, 2026 um 11:34 a.m.

  • Objekt ID: G-9252 T
  • Preis: 12.000,00€
  • Gesamtfläche: ca. 800.00 m²
  • Baujahr: 2026

Features

Kontakt Information

IHR ANSPRECHPARTNER

  • Gewerbeimmobilien Mergenthaler GmbH
  • (07151) 981 48 31

Anfrage zu diesem Objekt

    *Pflichtfeld