Werkstattgebäude mit drei Wohnungen – ideal für Familienbetriebe Zum Kauf

1.350.000,00€

Beschreibung

Beschreibung des Objekts

Im Gewerbegebiet See III in Leutenbach-Nellmersbach steht dieses vielseitige Wohn- und Geschäftshaus auf einem Eckgrundstück. Das Objekt vereint Wohnen, Arbeiten und Vermieten in idealerweise – perfekt für Eigennutzer, Handwerksbetriebe oder Kapitalanleger, die Potenzial erkennen und nutzen möchten.

Grundstücksgröße 1.256 m², Flurstücksnummer 913/4.

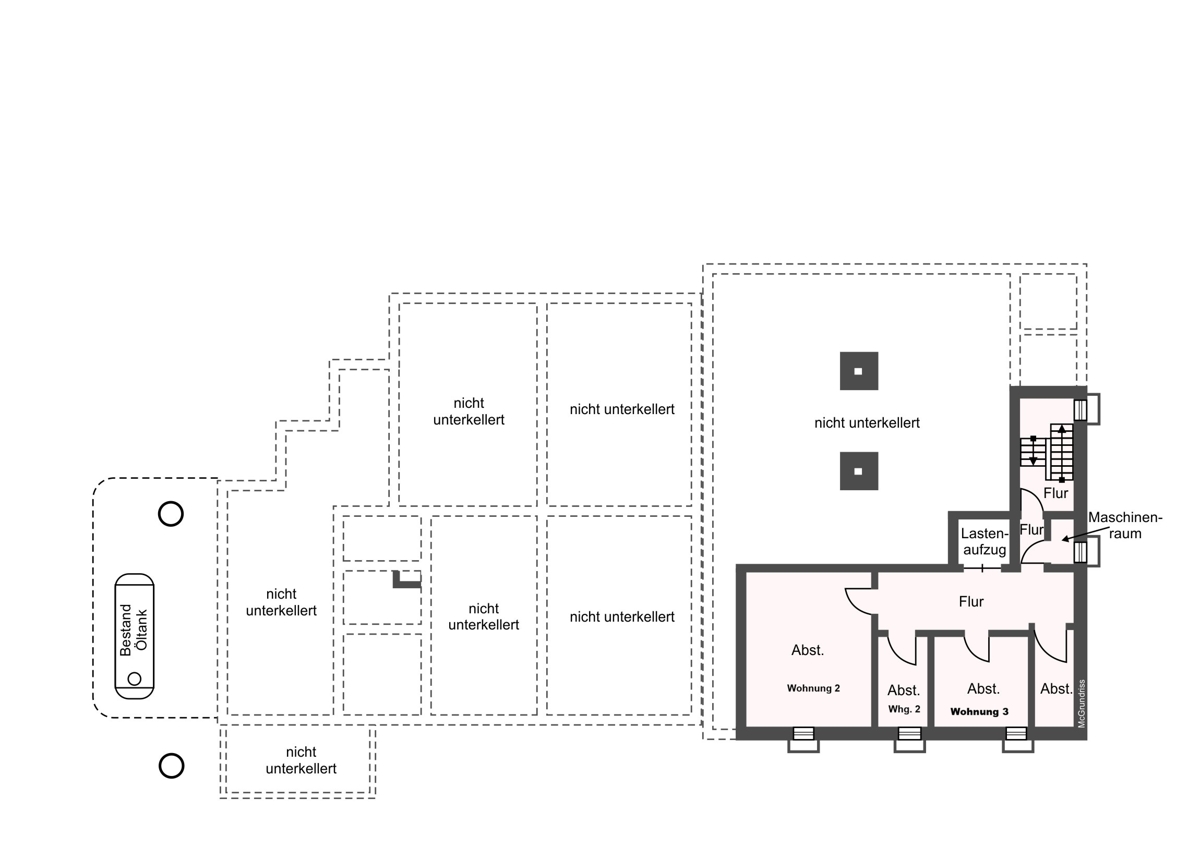
Das Anwesen ist teilunterkellert; im östlichen Gebäudeteil befinden sich ca. 95 m² Keller- und Lagerfläche im UG, die mit einem Lastenaufzug mit dem EG verbunden ist.

Im Erdgeschoss finden sich zwei Produktions- bzw. Werkstattflächen, jeweils mit separatem Zugang und guter Belichtung – ideal für Handwerk, Lager oder leichte Produktion. Ergänzt wird das Angebot durch moderne Büroräume, die sich in einem sehr gepflegten Zustand befinden.

ca. 40 m² Büro- oder Wohnfläche, frei
ca. 210 m² Gewerbe- und Werkstattfläche, derzeit vermietet
ca. 280 m² Gewerbe- und Werkstattfläche, derzeit vermietet

Gesamte Gewerbe-, Büro- und Lagerfläche im EG ca. 530 m²

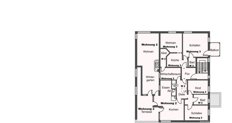
Im Obergeschoss befinden sich drei Wohnungen, die über zwei getrennte Treppenhäuser erschlossen werden:

westlicher Zugang: eigenes Treppenhaus
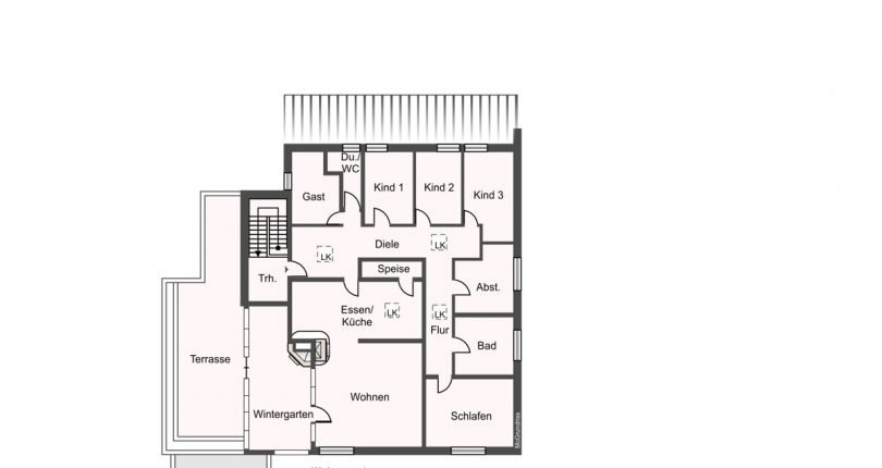
6-Zimmer-Wohnung, Küche, Bad, WC, Wintergarten, Terrasse ca. 245 m² Wfl., Terrassenflächen

östlicher Zugang:
2-Zimmer-Wohnung, Küche, Bad/WC, ca. 71 m² Wfl.
4-Zimmer-Wohnung, offener Wohn-Ess-Bereich, Bad, WC, Terrasse ca. 173 m² Wfl.

Gesamte Wohnfläche ca. 489 m² zzgl. Terrassenflächen

Die Wohnungen werden von den Eigentümern bewohnt. Diese können nach Absprache geräumt werden.

Die Hallen sind extern vermietet. Beide Parteien können den Vertrag mit einer Kündigungsfrist von 6 Monaten beenden, ansonsten verlängert er sich jeweils um 1 Jahr.

Linke Seite:
Laufzeit bis zum 01.03.2027 mit Verlängerungsoption, Kaltmiete mtl. 1.820 €

Rechte Seite:
Laufzeit bis zum 01.12.2026 mit Verlängerungsoption, Kaltmiete mtl. 1.200 €

Wohnungen OG, linke Seite:
Kleine Wohnung: unbefristeter Mietvertrag, von der Eigentümerfamilie bewohnt
Große Wohnung: unbefristeter Mietvertrag, von der Eigentümerfamilie bewohnt.

Wohnung OG, rechte Seite:
Große Wohnung, leer stehend

Das Objekt bietet eine Mischung aus sanierten und renovierungsbedürftigen Bereichen. Während zwei Wohnungen und die Bürofläche bereits modernisiert sind, besteht an anderen Teilen – insbesondere am Dach– kurzfristiger Handlungsbedarf. So lässt sich durch gezielte Maßnahmen zusätzlicher Wert schaffen.

Angaben zum Energieausweis, gültig bis 20.10.2035
VA, 374 kWh/(m²*a), ZH, Öl, Baujahr 1984, Baujahr Wärmeerzeuger 1984, H, 122 kg CO2-Äquivalent/m²*a),

Beschreibung der Ausstattung

Drei Wohneinheiten mit separaten Zugängen.
Zwei Produktions-/Werkstattbereiche.
Moderne Büroräume.
Großes Grundstück.

Starkstromversorgung erfolgt zurzeit über die Trafostation des Nachbargebäudes.

10.000 l Tank vorhanden.

Bislang wurde keine Trennung des Verbrauchs vorgenommen. Es sind keine separaten Zähler vorhanden.

Aufzug zwischen UG und EG vorhanden, aktuell nicht betrieben.

Neben den 14 genehmigten Stellplätzen gibt es zusätzlich noch eine Garage. Die zwei Stellplätze an der der Westseite wurden nicht erstellt.

Die Hallen sind beheizt.

Ca.-Angaben:
1995:Einbau Heizungskörper in den Hallen

1996:Wintergarten und offener Kamin rechte Wohnung

1995-Neuerstellung der großen Wohnung, linke Seite. Einbau Sicherheitstüre +
2008: Videoüberwachung

2000:Fassadenanstrich

2010:Erneuerung Platten auf der Terrasse rechte Wohnung

2015:Instandsetzung Flachdach

2020:Renovierung Terrasse, linke Seite, große Wohnung (Holzboden,
Decken, Platten), Kellerräume

2021:Neue Terrassentüre mit Stahltreppe, Terrasse EG
Komplettrenovierung Büroräume EG, rechts

2022:Erneuerung Fußböden, Decken, Wände, Bad, WC und Eingangstüre große
Wohnung links

2023:Kernsanierung kleine Wohnung: Fenster, Türen, EBK, Böden, Bad

2024:Waschküche renoviert

Lage

Das Wohn- und Geschäftshaus befindet sich im gewerblich geprägten Gebiet „Beim See III“ in Leutenbach-Nellmersbach – einem Standort, der Ideales für Gewerbe, Handwerk und Büroflächen bietet.

Das Gewerbegebiet „Beim See III“ bietet eine perfekte Symbiose aus Gewerbe, Wohnen und Entwicklungspotenzial, ideal für Unternehmer, Investoren oder alle, die Wohnen und Arbeiten unter einem Dach verbinden möchten

Vorteile der Lage:
Exzellente Anbindung: Das Gewerbegebiet ist verkehrstechnisch optimal erschlossen – sowohl autobahnnah als auch mit direktem Anschluss an die regionalen Straßenverbindungen.

Gewerbliche Nachbarschaft: Umgeben von erfolgreichen Betrieben, Dienstleistern und Handwerksunternehmen, bietet die Lage Sichtbarkeit und Synergien für gewerbliche Nutzung.

Ruhige Umgebung für Wohnen: Trotz der gewerblichen Lage profitieren die Wohnungen von relativer Ruhe und separaten Zugängen.

Infrastruktur in der Nähe: Einkaufsmöglichkeiten, Schulen, Kindergärten und Ärzte befinden in der Nähe oder im nahegelegenen Winnenden.

Flexibilität für Eigennutzer oder Investoren: Die Kombination aus Wohn- und Gewerbeflächen eröffnet zahlreiche Nutzungsmöglichkeiten, z. B. Eigennutzung mit Geschäftsräumen oder vollständige Kapitalanlage.

S-Bahn-Anschluss, in unmittelbarer Nähe.

Sonstige Angaben

Es liegt ein Energieverbrauchsausweis vor.
Dieser ist gültig bis 20.10.2035.
Endenergieverbrauch beträgt kwh/(m²*a).
Wesentlicher Energieträger der Heizung ist Öl.
Das Baujahr des Objekts lt. Energieausweis ist 1984.
Die Energieeffizienzklasse ist H.

Geschäfts und Provisionsbedingungen:

Sämtliche Angaben in diesem Exposé basieren auf Informationen, die uns vom Eigentümer / Verkäufer genannt wurden. Wir bemühen uns, möglichst vollständige und richtige Angaben zu erhalten und weiterzuleiten. Eine Haftung für Richtigkeit und Vollständigkeit können wir jedoch nicht übernehmen. Dieses Angebot ist vom Empfänger vertraulich zu behandeln, jede Weitergabe an Dritte ohne unsere Zustimmung ist unzulässig. Ist dem Empfänger das nachgewiesene Objekt bereits bekannt, so bitten wir Sie, uns dies unverzüglich binnen Wochenfrist mitzuteilen. Das Angebot ist freibleibend. Änderungen und Zwischenveräußerungen bleiben vorbehalten. Mit Abschluss des Kaufvertrages wird die vom Käufer zu bezahlende Maklerprovision in Höhe von 3,57 % (inkl. MwSt.) zur Zahlung fällig.

Diese Immobilie vermarkten wir gemeinsam mit den Immobilienbüro Winnenden, Frau Ljubica Solunovic.

Wir setzen die Richtlinien und Vorgaben der EU-DSGVO in allen Bereichen unseres Unternehmens um. Aktualisierungen und Änderungen sowie die Kontaktdaten unseres externen Datenschutzbeauftragten können Sie auf unserer Homepage (www.mergenthaler-immobilien.de/datenschutz/) einsehen.

  • Adresse: 71397, Leutenbach-Nellmersbach
  • Stadt: Leutenbach-Nellmersbach
  • Postleitzahl: 71397
  • Land: Germany

Detail

Letzte Änderung Mai 11, 2026 um 11:05 p.m.

  • Objekt ID: G-9264
  • Preis: 1.350.000,00€
  • Gesamtfläche: ca. 1019.00 m²
  • Baujahr: 1984

Features

Kontakt Information

IHR ANSPRECHPARTNER

  • Rolf Schulten
  • (07151) 981 48 31

Anfrage zu diesem Objekt

    *Pflichtfeld