Moderne Büroflächen in Stuttgart-Weilimdorf Zur Miete

6.375,00€

1.800,00€ Nebenkosten

Beschreibung

Beschreibung des Objekts

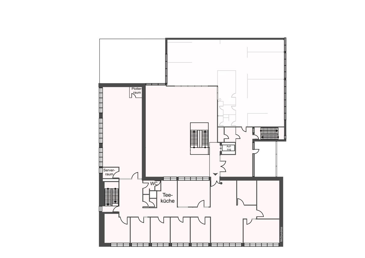
Helle Büroflächen durch Vollverglasung in einem Bürokomplex mit Teeküche, Aufenthaltsraum sowie sanitären Anlagen.

Mietkonditionen
Bürofläche ca. 500 x € 12,75 = € 6.375,00
7 Stellplätze im Freien à € 55,00 = € 385,00
9 TG-Stellplätze à € 85,00 = € 765,00
Nebenkostenvorauszahlung € 1.800,00
zzgl. gesetzlicher MwSt.

7 Stellplätze im Freien und 9 Tiefgaragenstellplätze.

Mietbar ab einer Teilfläche von 150 m² möglich.

Hausmeisterservice

Bedarfsausweis, 203 kWh/(m2*a), Zentralheizung, Gas, Bj. 1999, 52 CO2/(m2*a), Baujahr Wärmeerzeuger 1999

Beschreibung der Ausstattung

– komplette Vollverglasung
– Aufzug
– Schallschutzelemente an den Decken
– Fenster Kunststoff isolierverglast (aus 1996)
– Bodenbelag: Teppichboden
– Wände: Feinputz
– Verkabelung über Bodentanks
– Räume teilweise klimatisiert
– bei Bedarf können 4 Ladepunkte mit 11 kw-Säulen eingerichtet werden.

Auf Wunsch des Mieters kann die Büromöblierung und Büroeinrichtung und -ausstattung (soweit vorhanden) ohne weitere Kosten übernommen werden.

Lage

Weilimdorf (bis 1955 Weil im Dorf) ist ein Stadtbezirk im Nordwesten von Stuttgart. Er grenzt an die Stuttgarter Stadtbezirke Zuffenhausen, Feuerbach und Stuttgart-West sowie die Städte Gerlingen, Ditzingen und Korntal-Münchingen (alle drei Landkreis Ludwigsburg).

Sonstige Angaben

Es liegt ein Energiebedarfsausweis vor.
Dieser ist gültig bis 4.10.2034.
Endenergiebedarf beträgt 203.00 kwh/(m²*a).
Wesentlicher Energieträger der Heizung ist Erdgas leicht.
Das Baujahr des Objekts lt. Energieausweis ist 1999.

Geschäfts- und Provisionsvereinbarungen

Sämtliche Angaben basieren auf den Daten, die uns vom Eigentümer/Vermieter genannt wurden, daher können wir keine Haftung für die Richtigkeit übernehmen. Dieses Angebot ist vom Empfänger vertraulich zu behandeln, jede Weitergabe an Dritte ohne Zustimmung des Maklers ist unzulässig. Ist dem Empfänger das nachgewiesene Objekt bereits bekannt, so hat er dies dem Makler unverzüglich (binnen Wochenfrist) mitzuteilen. Mit Abschluss des Mietvertrages wird die vom Mieter zu bezahlende Mieterprovision in Höhe von 2,38 Netto-Monatskaltmieten inkl. MwSt. zur Zahlung fällig.

Wir setzen die Richtlinien und Vorgaben der EU-DSGVO in allen Bereichen unseres Unternehmens um. Aktualisierungen und Änderungen sowie die Kontaktdaten unseres externen Datenschutzbeauftragten können Sie auf unserer Homepage (www.mergenthaler-immobilien.de/datenschutz/) einsehen.

  • Adresse: 70499, Stuttgart-Weilimdorf
  • Stadt: Stuttgart-Weilimdorf
  • Postleitzahl: 70499
  • Land: Germany

Detail

Letzte Änderung Januar 28, 2026 um 2:00 p.m.

  • Objekt ID: G-9254
  • Preis: 6.375,00€
  • Baujahr: 1999

Features

Kontakt Information

IHR ANSPRECHPARTNER

  • Gewerbeimmobilien Mergenthaler GmbH
  • (07151) 981 48 31

Anfrage zu diesem Objekt

    *Pflichtfeld