Moderne Büroflächen in Leinfelden mit guter Verkehrsanbindung Zur Miete

13,00€

Beschreibung

Beschreibung des Objekts

Das Bürogebäude ist als klassischer Stahlbetonskelettbau mit den Abmessungen 42,50 m x 9,15 m erstellt und hat eine durchgehende Pfosten-Riegel-Fassade mit außenliegendem Sonnenschutz. Ein Grossteil der Fassade ist vollflächig und bodentief verglast.

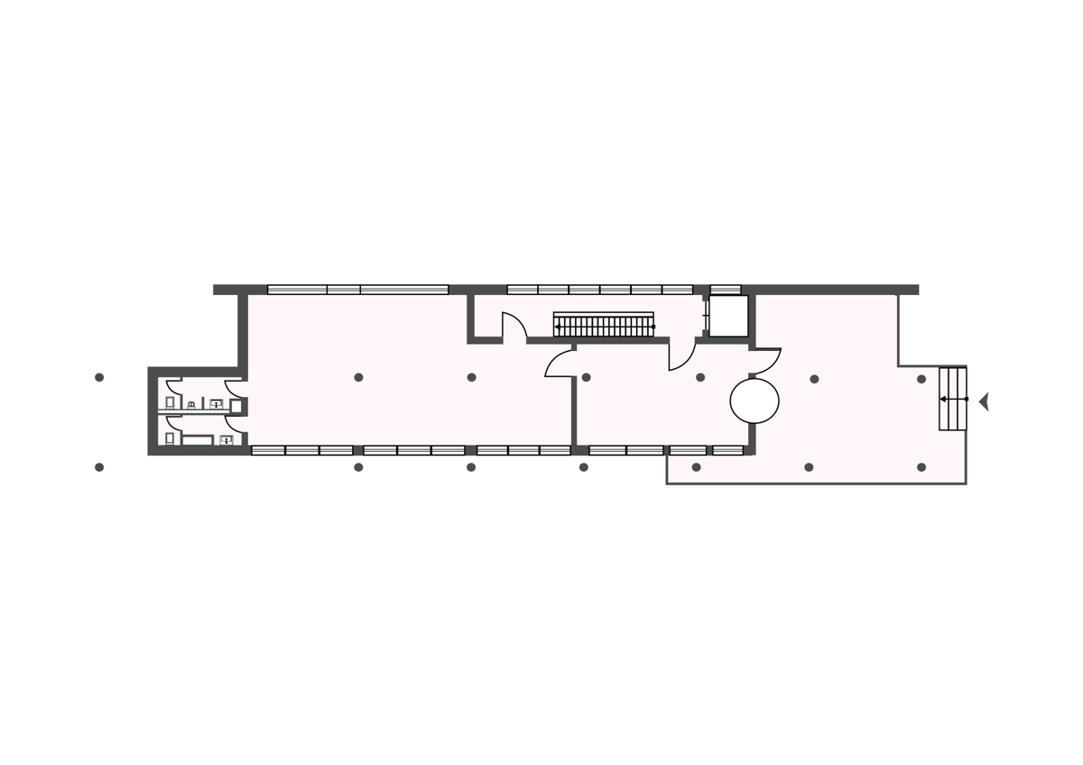
Im westlichen Teil des Gebäudes befindet sich das Treppenhaus mit Glasaufzug. Sämtliche Geschosse verfügen über Hohlraumböden für eine variable Installationsführung mit hochwertiger Textilbelägen. Der Grundriss ist frei von Querscheiben und bietet größtmögliche Flexibilität bei der Grundrissgestaltung. Die einzelnen Räume sind derzeit mit Glastrennwänden abgeteilt. Die Nasszellen sind voll gefliest und mit zeitloser WC-Einrichtung ausgestattet. Ebenso ist jedes Geschoss mit einer Teeküche ausgestattet.

– Aufzug
– Teeküche
– 2 x WC separat
– Fenster Kunststoff isolierverglast
– schalldämmende Paneele an den Decken
– Hausmeister-Vollservice

Kurzfristig frei nach Absprache.

Zentralheizung, Gas, Bj. 1995, Baujahr Wärmeerzeuger 1995
Die Erstellung des Energieausweises wurde beauftragt.

Beschreibung der Ausstattung

Das Bürogebäude mitten in Leinfelden-Echterdingen hat fünf Geschosse und die zu vermietende Gewerbeeinheit mit Bürofläche mit ca. 132 m² befindet im EG.

Mitvermietet werden drei PKW-Stellplätze im Außenbereich.

Die monatliche Kaltmiete beträgt € 13,-/m² inkl. 3 Kfz-Stellplätze zzgl. € 3,-/m² Nebenkostenvorauszahlung.

Auf die Kaltmiete zzgl. Nebenkostenvorauszahlung fällt die gesetzliche MwSt. an.

Lage

Leinfelden-Echterdingen liegt 12 km südlich der Landeshauptstadt Stuttgart. Die Stadt gehört zur Region Stuttgart und zur europäischen Metropolregion Stuttgart.

Die Flughafen- und Messestadt zählt zu den begehrtesten Wirtschaftsstandorten in der Region Stuttgart.

Sonstige Angaben

Geschäfts- und Provisionsvereinbarungen

Sämtliche Angaben basieren auf den Daten, die uns vom Eigentümer/Vermieter genannt wurden, daher können wir keine Haftung für die Richtigkeit übernehmen. Dieses Angebot ist vom Empfänger vertraulich zu behandeln, jede Weitergabe an Dritte ohne Zustimmung des Maklers ist unzulässig. Ist dem Empfänger das nachgewiesene Objekt bereits bekannt, so hat er dies dem Makler unverzüglich (binnen Wochenfrist) mitzuteilen. Mit Abschluss des Mietvertrages wird die vom Mieter zu bezahlende Mieterprovision in Höhe von 2,38 Netto-Monatskaltmieten inkl. MwSt. zur Zahlung fällig.

Hinweis zum Energieausweis:

Am 01. Mai 2014 ist die EnEV 2014 in Kraft getreten. Nach den §§ 16, 16 a EnEV ist der Eigentümer, Verkäufer, Vermieter, Verpächter und Leasinggeber bei der Vermarktung von Immobilien verpflichtet, den Energieausweis der Immobilie gemäß der gesetzlichen Vorgabe bei Besichtigungen auszuhändigen bzw. auszuhängen und bestimmte energetische Kennwerte aus dem Energieausweis in die Immobilieninserate und Exposés aufzunehmen. Dieser Nachweis wurde von uns bereits bei den Eigentümern angefordert und kann von Ihnen nach Fertigstellung eingesehen werden.

Wir setzen die Richtlinien und Vorgaben der EU-DSGVO in allen Bereichen unseres Unternehmens um. Aktualisierungen und Änderungen sowie die Kontaktdaten unseres externen Datenschutzbeauftragten können Sie auf unserer Homepage (www.mergenthaler-immobilien.de/datenschutz/) einsehen.

  • Adresse: 70771, Leinfelden-Echterdingen
  • Stadt: Leinfelden-Echterdingen
  • Postleitzahl: 70771
  • Land: Germany

Detail

Letzte Änderung November 26, 2025 um 6:02 p.m.

  • Objekt ID: G-9243 EG
  • Preis: 13,00€
  • Gesamtfläche: ca. 132.00 m²
  • Baujahr: 1995

Features

Kontakt Information

IHR ANSPRECHPARTNER

  • Gewerbeimmobilien Mergenthaler GmbH
  • (07151) 981 48 31

Anfrage zu diesem Objekt

    *Pflichtfeld