Gewerbeeinheit im charmanten Heusteigviertel Zum Kauf

Preis: auf Anfrage

Beschreibung

Beschreibung des Objekts

Baujahr vermutlich 1910, 1994 kernsaniert , ehemalige Stuttgarter Schnapsfabrik. Die Flächen befinden sich im EG und im Souterrain (UG). Die Außenwände bestehen teilweise aus Ziegelmauerwerk mit einer Mindeststärke von 24 cm. Das gesamte Gebäude wird durch ein Blockheizkraftwerk beheizt.

Derzeitige Nutzung der Fläche im EG als Wohnung. Die Nutzung zum Wohnen ist in der Teilungserklärung erlaubt. Über eine offene Treppe gelangt man in das UG (Souterrain), Diese Treppe kann geschlossen werden, so dass beide Einheiten getrennt genutzt werden können, daher ist eine separate Vermietung der Gewerbefläche möglich. Zusätzlicher Stellplatz im Freien vor dem Gebäude (auf Gemeinschaftsfläche).

Eine rein gewerbliche Nutzung ist möglich. Nutzungsmöglichkeiten beispielsweise als Atelier, Büro oder Kindertagesstätte.

Das monatliche Hausgeld beträgt zur Zeit 1.030,00 Euro.

Kaufpreis auf Anfrage!

VA 153,20 kWh /(m²*a), Blockheizkraftwerk, Erdgas, Bj. 1990, E, gültig bis 18.06.2028, Effizienzklasse E

Beschreibung der Ausstattung

Wohn- und Nutzfläche gesamt ca. 337 m²

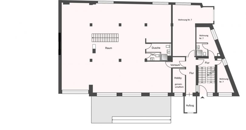
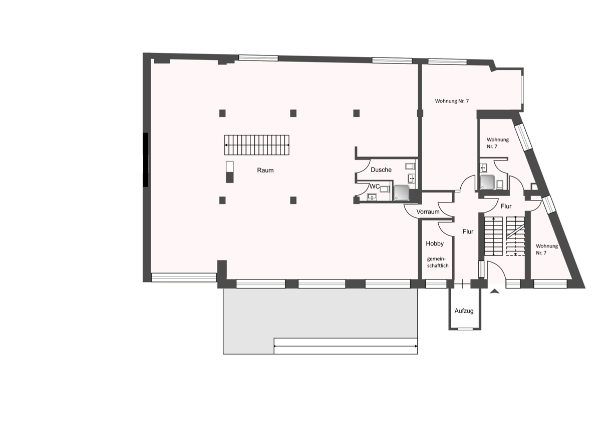
EG: 208 m²
– maisonette-ähnliche Aufteilung
– Trockenbauweise, indiviudelle Neugestaltung und Raumaufteilung möglich.
– Stablamellenparkett im gesamten Bereich
– Kiefernholzfensterprofile mit Isolierverglasung
– Aufteilung: Schlafzimmer, Abstellraum, Büro, großzügiger Wohn-Essbereich, offene Küche mit Tresen, Duschbad mit WC, Gästetoilette, Duschbad mit WC

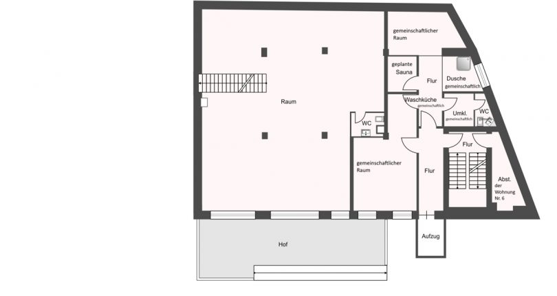
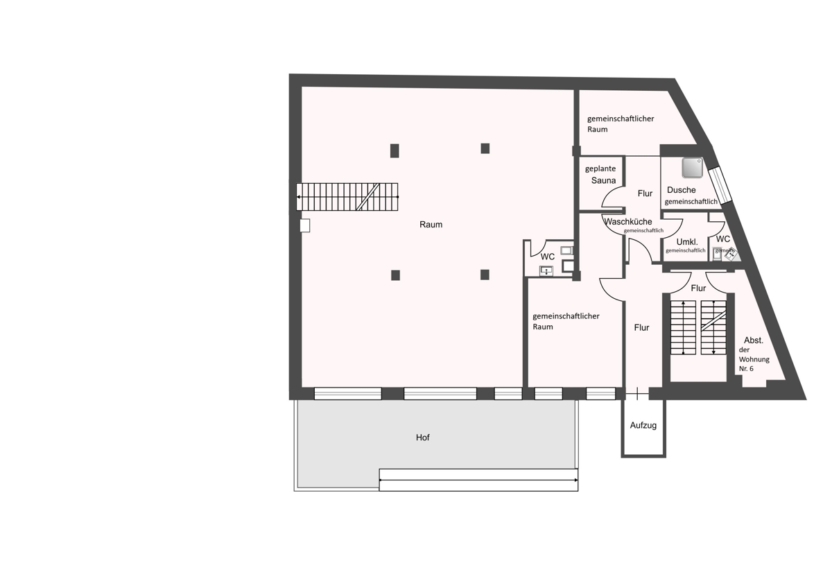
Souterrain (UG) 129 m²
– Teeküche
– Duschbad mit WC
– Zugang zur Terrasse 21 m² auf Gemeinschaftsfläche
– Zugang auch von außen möglich

– Personenaufzug außen am Gebäude
– Lastenkran außen

– 1 Stellplatz in der TG, Vierfachparker oben links

Lage

Das Heusteigviertel, zentral gelegen in Stuttgart, ist ein beliebtes und lebendiges Wohngebiet, das durch seinen einzigartigen Charme und seine hervorragende Infrastruktur besticht. Die historische Bausubstanz im Stil der Gründerzeit und des Jugendstils verleiht dem Viertel einen besonderen Charakter. Hier finden Sie eine Vielzahl von Geschäften und Einrichtungen, die den täglichen Bedarf abdecken.

Anbindung an das öffentliche Verkehrsnetz:
Das Heusteigviertel verfügt über eine exzellente Anbindung an das öffentliche Verkehrsnetz, was die Mobilität innerhalb Stuttgarts und darüber hinaus erleichtert: U-Bahn: Die U-Bahn-Stationen Österreichischer Platz (U1, U14) und Marienplatz (U1, U9, U34) sind schnell erreichbar und bieten eine direkte Verbindung ins Stadtzentrum und zu anderen wichtigen Knotenpunkten. Bus: Mehrere Buslinien bedienen das Viertel, darunter die Linien 41 und 43, die schnelle Verbindungen zu nahegelegenen Stadtteilen und wichtigen Verkehrsknotenpunkten bieten. Der S-Bahnhof Stadtmitte ist ebenfalls in der Nähe und ermöglicht schnellen Zugang zu den S-Bahn-Linien S1, S2, S3, S4, S5 und S6, die eine direkte Verbindung zu den umliegenden Städten und dem Flughafen Stuttgart bieten. Straßenbahn: Die Straßenbahnlinie 10 ist ebenfalls gut erreichbar und erweitert die Mobilitätsmöglichkeiten innerhalb der Stadt.

Sonstige Angaben

Es liegt ein Energieverbrauchsausweis vor.
Dieser ist gültig bis 18.6.2028.
Endenergieverbrauch beträgt 153.20 kwh/(m²*a).
Wesentlicher Energieträger der Heizung ist Erdgas leicht.
Das Baujahr des Objekts lt. Energieausweis ist 1994.
Die Energieeffizienzklasse ist E.

Geschäfts und Provisionsbedingungen:

Sämtliche Angaben in diesem Exposé basieren auf Informationen, die uns vom Eigentümer / Verkäufer genannt wurden. Wir bemühen uns, möglichst vollständige und richtige Angaben zu erhalten und weiterzuleiten. Eine Haftung für Richtigkeit und Vollständigkeit können wir jedoch nicht übernehmen. Dieses Angebot ist vom Empfänger vertraulich zu behandeln, jede Weitergabe an Dritte ohne unsere Zustimmung ist unzulässig. Ist dem Empfänger das nachgewiesene Objekt bereits bekannt, so bitten wir Sie, uns dies unverzüglich binnen Wochenfrist mitzuteilen. Das Angebot ist freibleibend. Änderungen und Zwischenveräußerungen bleiben vorbehalten. Mit Abschluss des Kaufvertrages wird die vom Käufer zu bezahlende Maklerprovision in Höhe von 3,57 % (inkl. MwSt.) zur Zahlung fällig.

Die Vermarktung des Objektes erfolgt im Rahmen eines Gemeinschaftsgeschäftes mit Corina Klamann Immobilien Stuttgart.

Wir setzen die Richtlinien und Vorgaben der EU-DSGVO in allen Bereichen unseres Unternehmens um. Aktualisierungen und Änderungen sowie die Kontaktdaten unseres externen Datenschutzbeauftragten können Sie auf unserer Homepage (www.mergenthaler-immobilien.de/datenschutz/) einsehen.

  • Adresse: 70180, Stuttgart
  • Stadt: Stuttgart
  • Postleitzahl: 70180
  • Land: Germany

Detail

Letzte Änderung März 3, 2025 um 10:42 a.m.

  • Objekt ID: G-9192
  • Gesamtfläche: ca. 337.00 m²
  • Baujahr: 1994

Features

Kontakt Information

IHR ANSPRECHPARTNER

  • Gewerbeimmobilien Mergenthaler GmbH
  • (07151) 981 48 31

Anfrage zu diesem Objekt

    *Pflichtfeld