Beschreibung
Beschreibung des Objekts
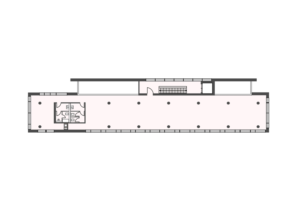
Das Bürogebäude ist als klassischer Stahlbetonskelettbau mit den Abmessungen 42,50 m x 9,15 m erstellt und hat eine durchgehende Pfosten-Riegel-Fassade mit außenliegendem Sonnenschutz. Ein Großteil der Fassade ist vollflächig und bodentief verglast.
Im westlichen Teil des Gebäudes befindet sich das Treppenhaus mit Glasaufzug. Sämtliche Geschosse verfügen über Hohlraumböden für eine variable Installationsführung mit hochwertiger Textilbelägen. Der Grundriss ist frei von Querscheiben und bietet größtmögliche Flexibilität bei der Grundrissgestaltung. Die einzelnen Räume sind derzeit mit Glastrennwänden abgeteilt. Die Nasszellen sind voll gefliest und mit zeitloser WC-Einrichtung ausgestattet. Ebenso ist jedes Geschoss mit einer Teeküche ausgestattet.
– Aufzug
– Teeküche
– 2 x WC separat
– Fenster Kunststoff isolierverglast
– schalldämmende Paneele an den Decken
– Hausmeister-Vollservice
Kurzfristig frei nach Absprache.
Zentralheizung, Gas, Bj. 1995, Baujahr Wärmeerzeuger 1995
Die Erstellung des Energieausweises wurde beauftragt.
Beschreibung der Ausstattung
Das Bürogebäude mitten in Leinfelden-Echterdingen hat fünf Geschosse und die zu vermietende Gewerbeeinheit mit Bürofläche mit ca. 280 m² befinde im 2. OG und einem Lagerraum im UG.
Mitvermietet werden sechs PKW-Stellplätze im Außenbereich und ein überdachter Stellplatz.
Die monatliche Kaltmiete beträgt € 13,-/m² inkl. 7 Kfz-Stellplätze zzgl. € 3,-/m² Nebenkostenvorauszahlung.
Auf die Kaltmiete zzgl. Nebenkostenvorauszahlung fällt die gesetzliche MwSt. an.
Lage
Leinfelden-Echterdingen liegt 12 km südlich der Landeshauptstadt Stuttgart. Die Stadt gehört zur Region Stuttgart und zur europäischen Metropolregion Stuttgart.
Die Flughafen- und Messestadt zählt zu den begehrtesten Wirtschaftsstandorten in der Region Stuttgart.
Sonstige Angaben
Geschäfts- und Provisionsvereinbarungen
Sämtliche Angaben basieren auf den Daten, die uns vom Eigentümer/Vermieter genannt wurden, daher können wir keine Haftung für die Richtigkeit übernehmen. Dieses Angebot ist vom Empfänger vertraulich zu behandeln, jede Weitergabe an Dritte ohne Zustimmung des Maklers ist unzulässig. Ist dem Empfänger das nachgewiesene Objekt bereits bekannt, so hat er dies dem Makler unverzüglich (binnen Wochenfrist) mitzuteilen. Mit Abschluss des Mietvertrages wird die vom Mieter zu bezahlende Mieterprovision in Höhe von 2,38 Netto-Monatskaltmieten inkl. MwSt. zur Zahlung fällig.
Hinweis zum Energieausweis:
Am 01. Mai 2014 ist die EnEV 2014 in Kraft getreten. Nach den §§ 16, 16 a EnEV ist der Eigentümer, Verkäufer, Vermieter, Verpächter und Leasinggeber bei der Vermarktung von Immobilien verpflichtet, den Energieausweis der Immobilie gemäß der gesetzlichen Vorgabe bei Besichtigungen auszuhändigen bzw. auszuhängen und bestimmte energetische Kennwerte aus dem Energieausweis in die Immobilieninserate und Exposés aufzunehmen. Dieser Nachweis wurde von uns bereits bei den Eigentümern angefordert und kann von Ihnen nach Fertigstellung eingesehen werden.
Wir setzen die Richtlinien und Vorgaben der EU-DSGVO in allen Bereichen unseres Unternehmens um. Aktualisierungen und Änderungen sowie die Kontaktdaten unseres externen Datenschutzbeauftragten können Sie auf unserer Homepage (www.mergenthaler-immobilien.de/datenschutz/) einsehen.