Hochwertige Halle mit Bürotrakt und Tiefgarage Zur Miete

12.997,00€

1.800,00€ Nebenkosten

Beschreibung

Beschreibung des Objekts

Gesamtfläche ca. 1.235 m²

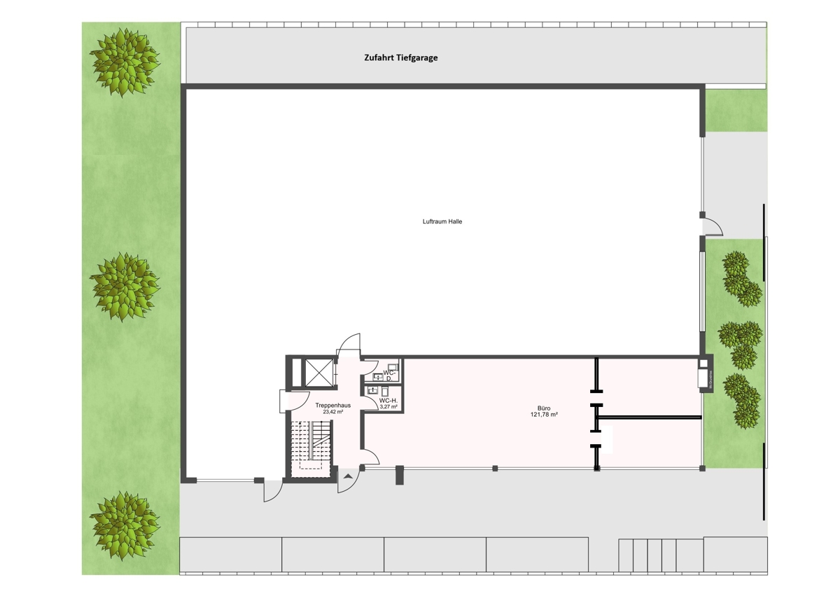
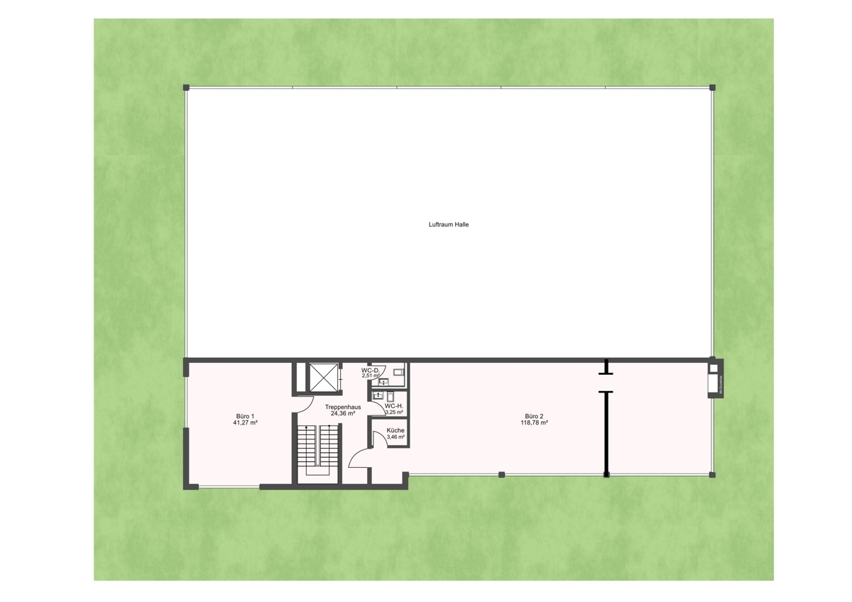
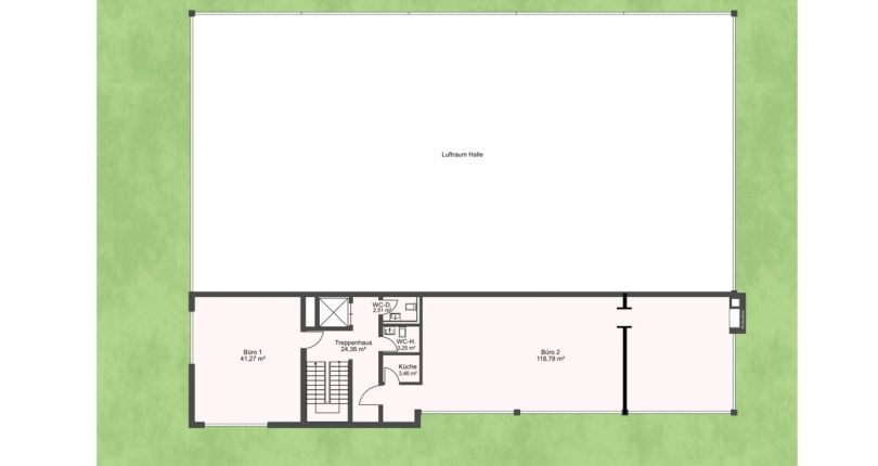
EG
Hochwertige Hallen-/Produktionsfläche ca. 515 m², 6 m Hallenhöhe, Stahlkonstruktion, Außenwände in isolierten Zink-Sandwichelementen, Fenster Kunststoff isolierverglast, Heizung mit Gas-Dunkelstrahler. Druckluftanlage als Ringleitung, Andienung über 2 ebenerdige Tore. Pkw-Absauganlage (kann übernommen werden). 5 Pkw-Hebebühnen, antistatische Beschichtung der Bodenplatte. Dachkonstruktion: Betondecke mit Lichtelementen.

EG/1. OG/2. OG Bürofläche insgesamt ca. 540 m² inkl. ca. 150 m² Nebenfläche pro Etage mit Teeküche, Damen-/Herren-WC, Aufzug über alle Ebenen. Massivbauweise, bodentiefe Fensterelemente, Kunststoff isolierverglast, teilweise abgehängte Decke mit schallisolierenden Mineralfasernplatten bzw. Gipskartonplatten. Heizung: Zentralheizung über Wärmepumpe.

UG (Unterkellerung der Bürofläche)
Aufenthaltsraum mit Tageslicht, Behinderten-WC, Umkleideräumen Damen/Herren mit Duschen und Toiletten, Serverraum, Technikraum, ca. 180 m².

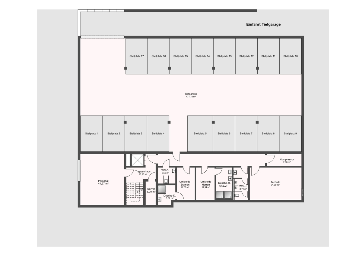
Tiefgarage
Deckenhöhe 2,20 m, Beton-Steinpflasterbelag, 4 Wallboxen.

Miete: € 12.997,00 zzgl. € 1.800,00 NK-VZ zzgl. MwSt. Diese setzt sich wie folgt zusammen:

Hallenflächen (ca. 515 m² x € 9,50/m²) € 4.892,00
Büroflächen (ca. 540 m² x € 11,00/m²) € 5.940,00
Sozialräume, Lager, Nebenräume (ca. 180 m² x € 4,00/m²) € 720,00
Tiefgaragenstellplätze 17 Stück (€ 85,00/pro Stellplatz) € 1.445,00
zzgl. NK € 1.800,00 + gesetzl. MwSt.

Diese Konditionen können nur bis 09/2029 gewährt werden.

Angaben zum Energieausweis:
Bedarfsausweis, 175 kWh/(m2*a), Zentralheizung, Gas, Bj. 2019, gültig bis 06.09.2029, 42 CO2/(m2*a), Baujahr Wärmeerzeuger 2019

Beschreibung der Ausstattung

– Gelände komplett umzäunt
– ca. 17 Stellplätze in der Tiefgarage und ca. 4 Stellplätze im Freien

Auf Wunsch des Mieters kann die Büromöblierung und Büroeinrichtung und -aussstattung (soweit vorhanden) nach Absprache übernommen werden.

Lage

Autobahn A8 ca. 900 m, A81 ca. 19 km
Bundesstraße B295 ca. 10,4 km
Bahnhof Renningen ca. 12,3 km
Flughafen ca. 32,2 km
S-Bahn ca. 12,3 km
Bus ca. 450 m

Sonstige Angaben

Es liegt ein Energiebedarfsausweis vor.
Dieser ist gültig bis 6.9.2029.
Endenergiebedarf beträgt 175.00 kwh/(m²*a).
Wesentlicher Energieträger der Heizung ist Erdgas schwer.
Das Baujahr des Objekts lt. Energieausweis ist 2019.

Geschäfts- und Provisionsvereinbarungen

Sämtliche Angaben basieren auf den Daten, die uns vom Eigentümer/Vermieter genannt wurden, daher können wir keine Haftung für die Richtigkeit übernehmen. Dieses Angebot ist vom Empfänger vertraulich zu behandeln, jede Weitergabe an Dritte ohne Zustimmung des Maklers ist unzulässig. Ist dem Empfänger das nachgewiesene Objekt bereits bekannt, so hat er dies dem Makler unverzüglich (binnen Wochenfrist) mitzuteilen. Mit Abschluss des Mietvertrages wird die vom Mieter zu bezahlende Mieterprovision in Höhe von 2,38 Netto-Monatskaltmieten inkl. MwSt. zur Zahlung fällig.

Wir setzen die Richtlinien und Vorgaben der EU-DSGVO in allen Bereichen unseres Unternehmens um. Aktualisierungen und Änderungen sowie die Kontaktdaten unseres externen Datenschutzbeauftragten können Sie auf unserer Homepage (www.mergenthaler-immobilien.de/datenschutz/) einsehen.

  • Adresse: 71296, Heimsheim
  • Stadt: Heimsheim
  • Postleitzahl: 71296

Detail

Letzte Änderung März 30, 2026 um 9:54 a.m.

  • Objekt ID: G-9257 H
  • Preis: 12.997,00€
  • Gesamtfläche: ca. 1235.00 m²
  • Baujahr: 2019

Features

Kontakt Information

IHR ANSPRECHPARTNER

  • Gewerbeimmobilien Mergenthaler GmbH
  • (07151) 981 48 31

Anfrage zu diesem Objekt

    *Pflichtfeld