Gewerbefläche in guter Geschäftslage Zum Kauf

Preis: auf Anfrage

Beschreibung

Beschreibung des Objekts

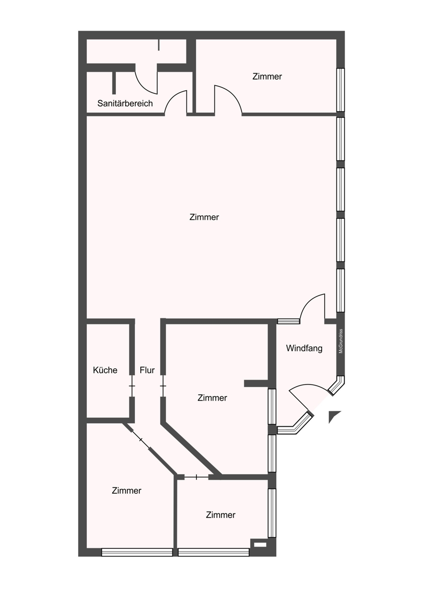
Zum Verkauf steht eine Gewerbefläche in guter Geschäftslage des Wohngebietes Waiblingen-Rinnenäcker. Der Danziger Platz ist die Geschäftslage des Stadtteils. Zahlreiche Geschäfte des täglichen Lebens, Gastronomie, Ärzte, Apotheke und das Seniorenheim Haus Miriam befinden sich in unmittelbarer Nähe.

Die Fläche ist derzeit vermietet und wird als Sportschule genutzt. Das Mietverhältnis kann kurzfristig gekündigt werden. Der Mieter möchte in den Räumen bleiben und ist bereit, einen langfristigen Mietvertrag abzuschließen.

Öffentliche Parkplätze befinden sich vor dem Gebäude und in der Nachbarschaft.

Nutzungsmöglichkeiten: Büro-/Laden-, Ausstellungsfläche oder für Gastronomie.

Kaufpreis auf Anfrage!

Energieausweis: BA, 178 kWh/(m²*a), Gas, Zentralheizung, Bj. 1960, F

Beschreibung der Ausstattung

– kleine Küche
– sanitäre Einrichtung, Damen/Herren
– eigener ebenerdiger Zugang
– große Fensterfläche
– Gebäude in Massivbauweise
– Fassade verputzt und gestrichen
– Fenster und Eingangstür Aluminium doppelverglast
– integrierte Beleuchtung in der abgehängten Decke
– Bodenbelag: Teppich, Fliesen, PVC
– Deckenhöhe ca. 2,8 m
– Klimagerät
– Gas-/Zentralheizung

Lage

Waiblingen ist eine Mittelstadt in Baden-Württemberg in der Region Stuttgart, die etwa zehn Kilometer nordöstlich der Landeshauptstadt Stuttgart liegt. Sie ist die Kreisstadt und größte Stadt des Rems-Murr-Kreises. Sie gehört außerdem zur europäischen Metropolregion Stuttgart. Zusammen mit der westlichen Nachbarstadt Fellbach bildet sie ein Mittelzentrum für die umliegenden Gemeinden.

Vom Danziger Platz fährt eine Buslinie (Haltestelle direkt vor dem Haus) zum Bahnhof und in die Innenstadt sowie nach Fellbach.

Sonstige Angaben

Es liegt ein Energiebedarfsausweis vor.
Dieser ist gültig bis 29.1.2029.
Endenergiebedarf beträgt 178.00 kwh/(m²*a).
Wesentlicher Energieträger der Heizung ist Gas.
Das Baujahr des Objekts lt. Energieausweis ist 1960.
Die Energieeffizienzklasse ist F.

Geschäfts und Provisionsbedingungen:

Sämtliche Angaben in diesem Exposé basieren auf Informationen, die uns vom Eigentümer / Verkäufer genannt wurden. Wir bemühen uns, möglichst vollständige und richtige Angaben zu erhalten und weiterzuleiten. Eine Haftung für Richtigkeit und Vollständigkeit können wir jedoch nicht übernehmen. Dieses Angebot ist vom Empfänger vertraulich zu behandeln, jede Weitergabe an Dritte ohne unsere Zustimmung ist unzulässig. Ist dem Empfänger das nachgewiesene Objekt bereits bekannt, so bitten wir Sie, uns dies unverzüglich binnen Wochenfrist mitzuteilen. Das Angebot ist freibleibend. Änderungen und Zwischenveräußerungen bleiben vorbehalten. Mit Abschluss des Kaufvertrages wird die vom Käufer zu bezahlende Maklerprovision in Höhe von 4,76 % (inkl. MwSt.) zur Zahlung fällig.

Wir setzen die Richtlinien und Vorgaben der EU-DSGVO in allen Bereichen unseres Unternehmens um. Aktualisierungen und Änderungen sowie die Kontaktdaten unseres externen Datenschutzbeauftragten können Sie auf unserer Homepage (www.mergenthaler-immobilien.de/datenschutz/) einsehen.

  • Adresse: 71332, Waiblingen
  • Stadt: Waiblingen
  • Postleitzahl: 71332
  • Land: Germany

Detail

Letzte Änderung Oktober 29, 2025 um 10:07 a.m.

  • Objekt ID: G-9208
  • Gesamtfläche: ca. 142.00 m²
  • Baujahr: 1960

Features

Kontakt Information

IHR ANSPRECHPARTNER

  • Rolf Schulten
  • (07151) 981 48 31

Anfrage zu diesem Objekt

    *Pflichtfeld