Flächen für leichte Produktion oder Büroflächen Zur Miete

Preis: auf Anfrage

Beschreibung

Beschreibung des Objekts

Gepflegte und repräsentative Gewerbeflächen über drei Etagen in einem Bürogebäude (erbaut 1980).

Die Räumlichkeiten im EG ca. 190 m² und 1. OG ca. 190 m² sind für leichte Produktion geeignet.

UG:
Tiefgarage mit 10 Stellplätzen, anzufahren über ein Sektionaltor mit Fernbedienung, eine Ladestation für ein E-Mobil. Vom UG geht der Personenaufzug über alle Etagen, Zugang zum abgeschlossenen Treppenhaus. Weitere 10 Pkw-Stellplätze befinden sich im Außenbereich.

Eine Lagerfläche (ca. 108 m²) befindet sich im hinteren Bereich der Tiefgaragenfläche. Diese Lagerfläche ist beheizt.

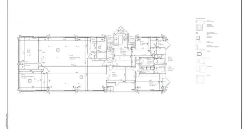
EG/ HP (Hochparterre):
ca. 190 m² für leichte Produktion. Die Andienung erfolgt über eine Rampe mit Elektrorolltor (Rampenlager ca. 26 m²) und 108 m² Lager im UG, Gesamt fläche 134 m²).

ca. 121 m² Bürobereich mit Empfang/Vorraum, Einzelbüros, einem Archiv-/Technikraum, einem Sanitärbereich mit Duschraum und WC separat sowie einem Pausenraum mit Teeküche.

ca. 88 m² Mehrzweckraum und drei weitere Büro- und Besprechungsräume. In diesem Bereich liegen antistatische Kunststoffböden.

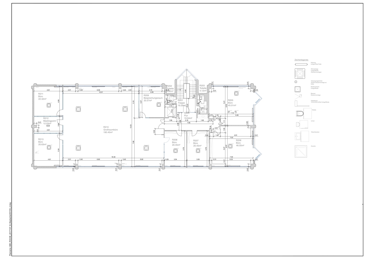
1. OG:
ca. 190 m² für leichte Produktion, ca. 234 m² Bürobereich mit Flurbereich/Vorraum/Teeküche, vier Einzelbüros, gesamt Fläche einem Sanitärbereich mit WC separat sowie ein Großraumbüro und vier weitere Büro- und Besprechungsräume. In diesem Bereich liegen ebenfalls antistatische Kunststoffböden.

2. OG:
ca. 415 m² Bürobereich mit Flurbereich, 12 Büro- und Besprechungsräume, einem Sanitärbereich mit WC separat und Duschbad mit WC. Aufenthaltsraum mit Einbauküche und Serverraum.

Die gesamte Mietfläche beträgt ca. 1.282 m² inkl. Lager, Flächen für leichte Produktion bzw. Büroflächen sowie Lagerflächen.

Mietkonditionen:
€ 11,50 €/m² zzgl. € 3,00/m² NK zzgl. MwSt.

Angaben zum Energieausweis: gültig bis 15.11.2029
BA, 152 kWh/(m²*a), ZH, Gas. Baujahr der Heizungsanlage 1980.

Beschreibung der Ausstattung

– Baujahr1980
– Betonkonstruktion in Massivbauweise
– Die Fassade besteht aus Sichtbeton
– Personenaufzug
– Klimaanlage
– Deckenhöhe 2,70 m, Klimatisierung und Beleuchtung in die Decken integriert
– Wände weiß
– Gas-/Zentralheizung
– Aluminiumfenster doppelverglast
– Jalousien
– EDV-Verkabelung
-Teeküchen/Aufenthaltsräume
– Einbauschränke
– Sanitärbereiche (teilweise mit Duschräumen)
– bis zu 10 Außenstellplätze
– bis zu 10 Stellplätze in der Tiefgarage

Lage

Waiblingen liegt landschaftlich reizvoll östlich von Stuttgart am Rande der Region Stuttgart. Die aktive Kreisstadt zählt 53.000 Einwohner und ist als attraktiver Wohnort mit nahe gelegenen Arbeitsplätzen in der Region begehrt. Handel, Gewerbe, Handwerk und Industrie haben sich hier in einer florierenden Mischung aus kleinen, mittleren und großen Betrieben angesiedelt. Allen voran belegen die Global Player, Bosch und Stihl die wirtschaftliche Qualität des Standortes.

Das Gewerbegebiet verfügt über eine gute Anbindung an die Bundestraßen B14 und B29, sowie an die zentralen Verkehrsachsen der Stadt. Diverse Buslinien und die S-Bahn S2 und S3 gewährleisten eine optimale Anbindung an den ÖPNV.

Sonstige Angaben

Es liegt ein Energiebedarfsausweis vor.
Dieser ist gültig bis 15.11.2029.
Endenergiebedarf für die Wärme beträgt 152.00 kwh/(m²*a).
Endenergiebedarf für den Strom beträgt kwh/(m²*a).
Wesentlicher Energieträger der Heizung ist Gas.

Geschäfts- und Provisionsvereinbarungen

Sämtliche Angaben basieren auf den Daten, die uns vom Eigentümer/Vermieter genannt wurden, daher können wir keine Haftung für die Richtigkeit übernehmen. Dieses Angebot ist vom Empfänger vertraulich zu behandeln, jede Weitergabe an Dritte ohne Zustimmung des Maklers ist unzulässig. Ist dem Empfänger das nachgewiesene Objekt bereits bekannt, so hat er dies dem Makler unverzüglich (binnen Wochenfrist) mitzuteilen. Mit Abschluss des Mietvertrages wird die vom Mieter zu bezahlende Mieterprovision in Höhe von 2,38 Netto-Monatskaltmieten inkl. MwSt. zur Zahlung fällig.

Wir setzen die Richtlinien und Vorgaben der EU-DSGVO in allen Bereichen unseres Unternehmens um. Aktualisierungen und Änderungen sowie die Kontaktdaten unseres externen Datenschutzbeauftragten können Sie auf unserer Homepage (www.mergenthaler-immobilien.de/datenschutz/) einsehen.

  • Adresse: 71332, Waiblingen
  • Stadt: Waiblingen
  • Postleitzahl: 71332
  • Land: Germany

Detail

Letzte Änderung Januar 15, 2026 um 5:36 a.m.

  • Objekt ID: G-9244 H
  • Gesamtfläche: ca. 1282.00 m²
  • Baujahr: 1980

Features

Kontakt Information

IHR ANSPRECHPARTNER

  • Rolf Schulten
  • (07151) 981 48 31

Anfrage zu diesem Objekt

    *Pflichtfeld