2 Wohn- und Geschäftshäuser mit 6 Wohneinheiten sowie 2 vielseitigen Gewerbeflächen Zum Kauf

1.595.000,00€

Beschreibung

Beschreibung des Objekts

Dieses Wohn- und Geschäftshaus steht an einer Ausfallstraße aus dem Wohngebiet und zurückversetzt an der Ortsdurchfahrt. Im Gebäude befinden sich 6 Wohnungen und 2 Gewerbeeinheiten, mit 2 Garagen und Fläche für mehrere Stellplätze.

Zwei Wohnungen und eine Gewerbefläche sind aktuell vermietet und die anderen Wohnungen werden nach Verkauf frei.

Die Gewerbeeinheit Nr. 9 im Haus 92 wird nach dem Verkauf frei, und die Gewerbeeinheit Nr. 8 im Haus 6 ist zur Zeit vermietet.

Gesamte Wohnfläche ca. 460 m²
Gesamte Gewerbefläche ca. 260 m²
Gesamte gewerbliche Nebenfläche ca. 150 m²
Grundstücksgröße 1.085 m²

Haustyp: Konventionelle Bauweise aus dem Baujahren 1960 und 1971

Fassade: verputzt und gestrichen, an der Ostseite gedämmt

Dach: Holzzimmermannskonstruktion mit Ziegeln gedeckt

Isolierung: Glaswolle-Bahnen mit Aluminiumrücken zwischen den Dachsparren verlegt

Elektrik:Ausführung: dreiadrig und geerdet

Fenster Gebäude Karl-Ziegler-Straße:
Kunststoff, dreifach isolierverglast von 2009, elektrische Rollläden an der Ostseite

Fenster Gebäude Bildäckerstraße:
Kunststoff, doppelt isolierverglast von 2013

Heizung: Öl-/Zentralheizung mit zentraler Warmwasserbereitung von 1996, neue Heizungsrohre, verlegt 1996, Wasserrohre neu verlegt 1996, Austausch des Warmwasserbehälters im Jahr 2009, Austausch der Wärmemengenzähler und des Ausdehnungsgefäßes im Jahr 2014.

Angaben zum Energieausweis für Gebäude im Haus 6:
Bedarfsausweis, 234 kWh/(m2*a), Zentralheizung, Heizöl, Bj. 1971, G, gültig bis 31.07.2033, 74 CO2/(m2*a), Baujahr Wärmeerzeuger 1989

Angaben zum Energieausweis für Gebäude im Haus 92:
BA, 160 kWh/(m2*a), ZH, Heizöl, Bj. 1960, E, gültig bis 03.03.2035, 52 CO2/(m2*a), Baujahr Wärmeerzeuger 1996

Beschreibung der Ausstattung

Wohn- und Geschäftsgebäude – Haus 92:

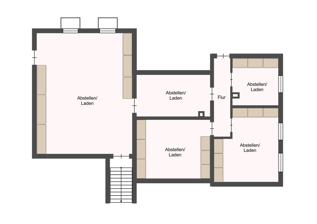
Ladenfläche/Gewerbefläche Nr. 9, EG, Nutzfläche gesamt ca. 169 m²:
Verkaufsraum ca. 163 m²
Windfang ca. 5 m²
Kunden-WC ca. 1 m²
Sanitär:1 WC separat, Küchenanschlüsse

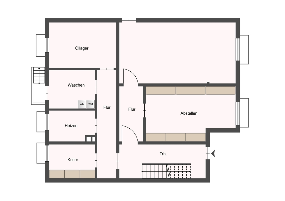
Kellergeschoß, Nutzfläche gesamt ca. 123 m²:
Flur ca. 7 m²
Abstellraum 1 ca. 19 m²
Abstellraum 2 ca. 20 m²
Lager ca. 15 m²
Abstellfläche 1 ca. 52 m²
Abstellfläche 2 ca. 10 m²

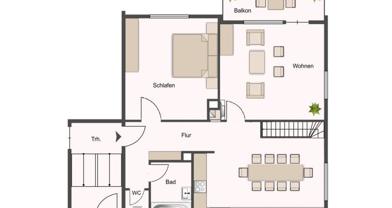
Wohnung Nr. 1 im Erdgeschoß rechts im Haus 92, Wohnfläche ca. 79 m²:
ca. 23 m² – Wohnen
ca. 18 m² – Schlafzimmer
ca. 22 m² – Küche/Essbereich
ca. 5 m² – Badezimmer
ca. 1 m² – Separates WC
ca. 7 m² – Flur
ca. 3 m² – Balkon (Grundfläche wird zu 50 Prozent in die Wfl. berechnet)
und direktem Zugang zum Garten
ca. 23 m² – Kellerraum
Sanitär:Bad mit Fenster, ausgestattet mit Badewanne mit Duscharmatur, Waschbecken (renoviert ca. 1998), WC separat mit Fenster und ohne Waschbecken

Diese Wohnung ist über eine Innentreppe baulich mit der Wohnung Nr. 2 verbunden.

Wohnung Nr. 2 im 1. OG rechts im Haus 92 = Wohnfläche ca. 79 m²:
ca. 23 m² – Wohnen
ca. 18 m² – Schlafzimmer
ca. 14 m² – Zimmer/Kind
ca. 7 m² – Küche
ca. 6 m² – Badezimmer mit Dusche und WC
ca. 7 m² – Flur
ca. 3 m² – Balkon 1 (Grundfläche wird zu 50 Prozent in die Wfl. berechnet)
ca. 1 m² – Balkon 2 (Grundfläche wird zu 50 Prozent in die Wfl. berechnet)
ca. 18 m² – Kellerraum
ca. 4 m² – Abstellraum im DG
Sanitär: barrierefreies Bad mit Dusche mit Rain-Shower, Bidet, WC und Handtuchheizung, renoviert 2012

Wohnung Nr. 3 im 1. OG links im Haus 92 = Wohnfläche ca. 89 m²:
ca. 20 m² – Essen
ca. 18 m² – Wohnen
ca. 13 m² – Zimmer/Kind 1
ca. 14 m² – Zimmer/Kind 2
ca. 7 m² – Küche
ca. 5 m² – Badezimmer
ca. 1 m² – Separates WC
ca. 8 m² – Flur
ca. 3 m² – Balkon 1 (Grundfläche wird zu 50 Prozent in die Wfl. berechnet)
ca. 16 m² – Kellerraum
Sanitär:Bad mit Fenster, ausgestattet mit Badewanne mit Duscharmatur, Waschbecken und WC (renoviert ca. 1998)

Wohnung Nr. 4 im DG rechts im Haus 92 = Wohnfläche ca. 43 m²:
ca. 22 m² – Wohn/Essbereich
ca. 12 m² – Schlafzimmer
ca. 3 m² – Küche
ca. 2 m² – Badezimmer und WC
ca. 4 m² – Flur
ca. 8 m² – Kellerraum
Sanitär:Bad mit Fenster, ausgestattet mit Badewanne mit Duscharmatur, Waschbecken und WC (renoviert ca. 1998)

Wohnung Nr. 5 im DG links im Haus 92 = Wohnfläche ca. 43 m²:
ca. 22 m² – Wohn/Essbereich
ca. 12 m² – Schlafzimmer
ca. 3 m² – Küche
ca. 2 m² – Badezimmer und WC
ca. 4 m² – Flur
ca. 8 m² – Kellerraum
Sanitär:Bad mit Fenster, ausgestattet mit Badewanne mit Duscharmatur, Waschbecken (renoviert ca. 1998), WC separat inliegend

Wohn- und Geschäftsgebäude – Haus 6:

Ladenfläche Nr. 8 im EG, Nutzfläche gesamt ca. 92 m²:
Sanitär:1 WC separat, Küchenanschlüsse
ca. 85 m² – Verkaufsraum
ca. 6 m² – Büro
ca. 1 m² – WC

Kellergeschoß, Nutzfläche ca. 28 m²:
Abstellfläche ca. 28 m²

Wohnung Nr. 6 im OG im Haus 6 = Wohnfläche ca. 90 m²:
ca. 22 m² – Wohn/Essbereich
ca. 20 m² – Schlafzimmer
ca. 11 m² – Kinderzimmer 1
ca. 12 m² – Kinderzimmer 2
ca. 7 m² – Küche
ca. 5 m² – Badezimmer und WC
ca. 5 m² – Flur
ca. 8 m² – Balkon 1 (Grundfläche wird zu 50 Prozent in die Wfl. berechnet)
ca. 20 m² – Abstellraum
Sanitär:Bad mit Fenster, ausgestattet mit Badewanne mit Duscharmatur, Waschbecken (renoviert ca. 1995), WC separat inliegend.

Wohnung Nr. 7 im Dachgeschoß im Haus 6 = Wohnfläche ca. 39 m²:
ca. 19 m² – Wohn/Essbereich
ca. 6 m² – Schlafzimmer
ca. 5 m² – Küche
ca. 5 m² – Badezimmer und WC
ca. 4 m² – Flur
ca. 6 m² – Keller
Sanitär:Bad mit Fenster, ausgestattet mit Badewanne mit Duscharmatur, Waschbecken und WC

Lage

Hohenacker ist ein Teilort der Stadt Waiblingen, nordöstlich von Stuttgart mit ca. 5.000 Einwohnern.

Hohenacker liegt verkehrsgünstig zwischen Waiblingen, Winnenden und Ludwigsburg. Der Bahnhof Hohenacker/ Neustadt ist fußläufig in wenigen Gehminuten erreichbar und ist über einen S-Bahn-Anschluss der Linie S3 (Backnang–Stuttgart-Flughafen) in den Verkehrsverbund Stuttgart eingebunden. Linienbusse verkehren regelmäßig nach Waiblingen. Alle Einkaufsmöglichkeiten des täglichen Lebens befinden sich in unmittelbarer Nähe. Schulen und Kindergarten sowie Ärzte sind im Ort. Freizeitmöglichkeiten sind gegeben. Weiterführende Schulen befinden sich in Waiblingen und Neustadt.

Sonstige Angaben

Es liegt ein Energiebedarfsausweis vor.
Dieser ist gültig bis 3.3.2035.
Endenergiebedarf beträgt 160.00 kwh/(m²*a).
Wesentlicher Energieträger der Heizung ist Öl.
Das Baujahr des Objekts lt. Energieausweis ist 1960.
Die Energieeffizienzklasse ist E.

Eine Besichtigung ist nach Absprache in unserer Begleitung möglich.

Geschäfts und Provisionsbedingungen:

Sämtliche Angaben in diesem Exposé basieren auf Informationen, die uns vom Eigentümer / Verkäufer genannt wurden. Wir bemühen uns, möglichst vollständige und richtige Angaben zu erhalten und weiterzuleiten. Eine Haftung für Richtigkeit und Vollständigkeit können wir jedoch nicht übernehmen. Dieses Angebot ist vom Empfänger vertraulich zu behandeln, jede Weitergabe an Dritte ohne unsere Zustimmung ist unzulässig. Ist dem Empfänger das nachgewiesene Objekt bereits bekannt, so bitten wir Sie, uns dies unverzüglich binnen Wochenfrist mitzuteilen. Das Angebot ist freibleibend. Änderungen und Zwischenveräußerungen bleiben vorbehalten. Mit Abschluss des Kaufvertrages wird die vom Käufer zu bezahlende Maklerprovision in Höhe von 4,76 % (inkl. MwSt.) zur Zahlung fällig.

Wir setzen die Richtlinien und Vorgaben der EU-DSGVO in allen Bereichen unseres Unternehmens um. Aktualisierungen und Änderungen sowie die Kontaktdaten unseres externen Datenschutzbeauftragten können Sie auf unserer Homepage (www.mergenthaler-immobilien.de/datenschutz/) einsehen.

  • Adresse: 71336, Waiblingen
  • Stadt: Waiblingen
  • Postleitzahl: 71336
  • Land: Germany

Detail

Letzte Änderung September 8, 2025 um 1:58 p.m.

  • Objekt ID: G-9229
  • Preis: 1.595.000,00€
  • Baujahr: 1960

Features

Kontakt Information

IHR ANSPRECHPARTNER

  • Gewerbeimmobilien Mergenthaler GmbH
  • (07151) 981 48 31

Anfrage zu diesem Objekt

    *Pflichtfeld